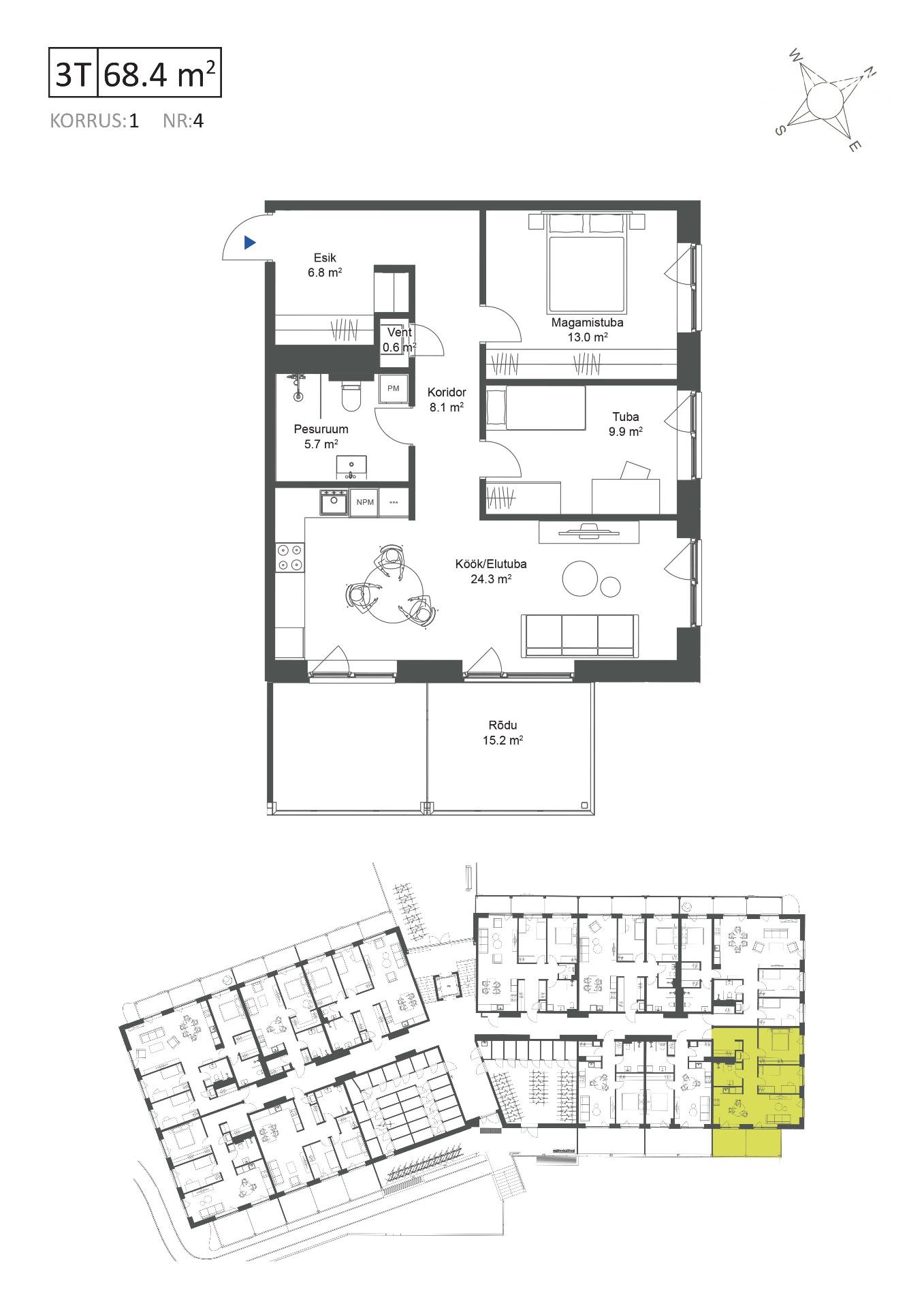
For sale apartment, 3 room - Kotermaa tänav 7-4, Haabersti linnaosa, Tallinn, Harju maakond
New Apartments in Natura Park – Kotermaa 5 and 7
Natura Park is a home you will always enjoy coming back to.
Additional information and project materials can be found on our website:
http://www.naturapark.ee
In the green district of Haabersti, near Lake Harku, construction of new residential buildings in the popular Natura Park development has begun. The area combines the tranquility of nature with convenient urban infrastructure: nearby you will find shops, sports clubs, walking and cycling paths, as well as public transport stops.
Modern buildings and a well-planned living environment
Construction of the buildings at Kotermaa 5 and 7 began in November 2025, with completion scheduled for spring 2027.
The new buildings will offer 100 spacious 2–4 room apartments. The architecture is modern and the surrounding area will feature landscaped courtyards, relaxation areas, and children’s playgrounds, creating a pleasant and comfortable living environment.
For residents’ convenience, dedicated storage rooms for bicycles and strollers will be provided, along with secure parking.
Modern apartments with high-quality interior finishes
All apartments feature large balconies and will be delivered fully finished in a modern minimalist style.
Buyers can choose between two interior design packages: Lumina or Iconica.
High-quality materials are used in the interior finishes, including:
• natural single-strip oak parquet flooring by Tarkett
• large-format Ragno 60×60 tiles in the bathroom
• Vitra sanitary ware
• Tres faucets
• modern Schneider electrical fittings
Kitchen included in the price
All apartments come with high-quality kitchen furniture, allowing you to move in immediately after receiving the keys.
Parking and additional amenities
Residents can choose from various parking and storage solutions.
Some parking spaces will be equipped with electric vehicle charging stations.
Available options include:
• parking space for an electric vehicle in the garage — €14,000
• parking space in the garage — €11,000
• electric vehicle parking space in the courtyard — €10,000
• parking space in the courtyard — €7,000
• storage room in the garage — €7,000
• storage room on the 1st floor — €5,000
Natura Park is a modern residential neighbourhood where the comfort of city living meets a green and peaceful environment.
Contact us to learn more about available apartments and to choose the layout that best suits your needs.
If you are planning to purchase an apartment in Natura Park but first need to sell your current property, I will be happy to assist you.
Natura Park is a home you will always enjoy coming back to.
Additional information and project materials can be found on our website:
http://www.naturapark.ee
In the green district of Haabersti, near Lake Harku, construction of new residential buildings in the popular Natura Park development has begun. The area combines the tranquility of nature with convenient urban infrastructure: nearby you will find shops, sports clubs, walking and cycling paths, as well as public transport stops.
Modern buildings and a well-planned living environment
Construction of the buildings at Kotermaa 5 and 7 began in November 2025, with completion scheduled for spring 2027.
The new buildings will offer 100 spacious 2–4 room apartments. The architecture is modern and the surrounding area will feature landscaped courtyards, relaxation areas, and children’s playgrounds, creating a pleasant and comfortable living environment.
For residents’ convenience, dedicated storage rooms for bicycles and strollers will be provided, along with secure parking.
Modern apartments with high-quality interior finishes
All apartments feature large balconies and will be delivered fully finished in a modern minimalist style.
Buyers can choose between two interior design packages: Lumina or Iconica.
High-quality materials are used in the interior finishes, including:
• natural single-strip oak parquet flooring by Tarkett
• large-format Ragno 60×60 tiles in the bathroom
• Vitra sanitary ware
• Tres faucets
• modern Schneider electrical fittings
Kitchen included in the price
All apartments come with high-quality kitchen furniture, allowing you to move in immediately after receiving the keys.
Parking and additional amenities
Residents can choose from various parking and storage solutions.
Some parking spaces will be equipped with electric vehicle charging stations.
Available options include:
• parking space for an electric vehicle in the garage — €14,000
• parking space in the garage — €11,000
• electric vehicle parking space in the courtyard — €10,000
• parking space in the courtyard — €7,000
• storage room in the garage — €7,000
• storage room on the 1st floor — €5,000
Natura Park is a modern residential neighbourhood where the comfort of city living meets a green and peaceful environment.
Contact us to learn more about available apartments and to choose the layout that best suits your needs.
If you are planning to purchase an apartment in Natura Park but first need to sell your current property, I will be happy to assist you.
I offer professional support in selling your existing property and guiding you through the purchase of a new apartment in this development.
Loe veel
248 000 €
3 625.7 € / m2
Condition:
New
Number of rooms:
3
Total area:
68.4 m2
Storey:
1 / 4
Date of construction:
2027
Storageroom:
1
Heating:
Heated floors
with localised gas
with localised gas
Building material:
Stone
Form of ownership:
Apartment ownership
Energy performance certificate:
A
Additional information:
Internet, security door, parquet, refrigerator, shower
Location: