For sale apartment, 2 room - Rüütli 23/25-2, Kesklinn, Pärnu linn, Pärnu linn, Pärnu maakond
The price includes VAT!
New apartments and commercial spaces are now available for sale in Pärnu Old Town on Rüütli Street!
Mohri Houses is a complex of three buildings (Rüütli 23/25), consisting of apartments and commercial premises on the ground floor.
The more than 340‑year‑old Mohri Houses have a long and fascinating history. Rüütli 23 was completed in 1681 as the residence of Pärnu alderman and merchant Christoph Heinrich Mohr. It was one of the first houses in Pärnu built with its façade facing the street and the former market square—today’s Children’s Park. The ground floor housed commercial premises, and the second floor served as living quarters.
The thoroughly renovated Mohri Houses will regain their former dignified appearance combined with modern comforts!
All apartments are unique and feature exciting custom solutions. The ground floor and basement level are intended for businesses that complement Rüütli Street—the city’s main street and the heartbeat of the Old Town.
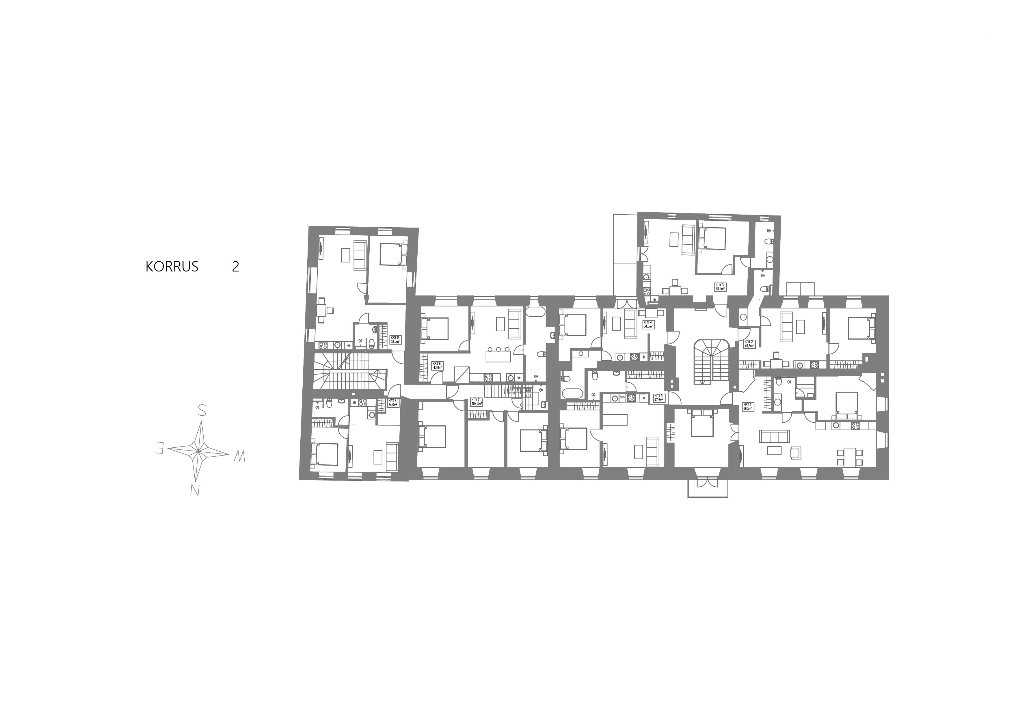
Mohri Houses comprise a total of 16 apartments, from 2‑room to 4‑room layouts.
New apartments and commercial spaces are now available for sale in Pärnu Old Town on Rüütli Street!
Mohri Houses is a complex of three buildings (Rüütli 23/25), consisting of apartments and commercial premises on the ground floor.
The more than 340‑year‑old Mohri Houses have a long and fascinating history. Rüütli 23 was completed in 1681 as the residence of Pärnu alderman and merchant Christoph Heinrich Mohr. It was one of the first houses in Pärnu built with its façade facing the street and the former market square—today’s Children’s Park. The ground floor housed commercial premises, and the second floor served as living quarters.
The thoroughly renovated Mohri Houses will regain their former dignified appearance combined with modern comforts!
All apartments are unique and feature exciting custom solutions. The ground floor and basement level are intended for businesses that complement Rüütli Street—the city’s main street and the heartbeat of the Old Town.
Mohri Houses comprise a total of 16 apartments, from 2‑room to 4‑room layouts.
Eight of the apartments extend over two floors, and several feature a terrace or balcony.
The interior finishes use high‑quality premium‑class materials that suit this historic and distinguished building.
The apartment for sale:
A 2‑room apartment, 48.1 m², located on the 2nd floor with a south‑facing view.
The apartment features water‑based underfloor heating connected to district heating, apartment‑specific ventilation with heat recovery, digital temperature sensors for heating and ventilation control, triple‑glazed wooden windows, and a Villeroy & Boch O.Novo wall‑hung toilet.
The bathroom includes a Danish Adora Infigo shower system and mixer. Floors in the living areas are covered with high‑quality oak parquet, and wet rooms feature 60 × 60 cm premium Italian ceramic tiles.
The apartment price includes VAT!
Available for purchase additionally:
Storage room on basement level (various sizes) — €2200/m²
Come and enjoy the atmosphere of Pärnu’s historic Old Town—relax and live right in the heart of the city.
Loe veel
The interior finishes use high‑quality premium‑class materials that suit this historic and distinguished building.
The apartment for sale:
A 2‑room apartment, 48.1 m², located on the 2nd floor with a south‑facing view.
The apartment features water‑based underfloor heating connected to district heating, apartment‑specific ventilation with heat recovery, digital temperature sensors for heating and ventilation control, triple‑glazed wooden windows, and a Villeroy & Boch O.Novo wall‑hung toilet.
The bathroom includes a Danish Adora Infigo shower system and mixer. Floors in the living areas are covered with high‑quality oak parquet, and wet rooms feature 60 × 60 cm premium Italian ceramic tiles.
The apartment price includes VAT!
Available for purchase additionally:
Storage room on basement level (various sizes) — €2200/m²
Come and enjoy the atmosphere of Pärnu’s historic Old Town—relax and live right in the heart of the city.
215 000 €
4 469.9 € / m2
Condition:
New
Number of rooms:
2
Total area:
48.1 m2
Storey:
2 / 4
Date of construction:
1681
Bedrooms:
1
Bathrooms:
1
Heating:
Central heating
Heated floors
Heated floors
Roof:
Stone roof
Building material:
Stone
Cadastral register number:
Form of ownership:
Apartment ownership
Additional information:
parquet, shower
Location: