For sale apartment, 3 room - Rüütli 23/25-16, Kesklinn, Pärnu linn, Pärnu linn, Pärnu maakond

https://domus.ee/en/808207414018225400/ Copy the link Share on Facebook
The price includes VAT!
New apartments and commercial spaces are now available for sale in Pärnu Old Town on Rüütli Street!
Mohri Houses is a complex of three buildings (Rüütli 23/25), consisting of apartments and commercial premises on the ground floor.
The more than 340‑year‑old Mohri Houses have a long and fascinating history. Rüütli 23 was completed in 1681 as the residence of Pärnu alderman and merchant Christoph Heinrich Mohr. It was one of the first houses in Pärnu built with its façade facing the street and the former market square—today’s Children’s Park. The ground floor housed commercial premises, and the second floor served as living quarters.
The thoroughly renovated Mohri Houses will regain their former dignified appearance combined with modern comforts!
All apartments are unique and feature exciting custom solutions. The ground floor and basement level are intended for businesses that complement Rüütli Street—the city’s main street and the heartbeat of the Old Town.
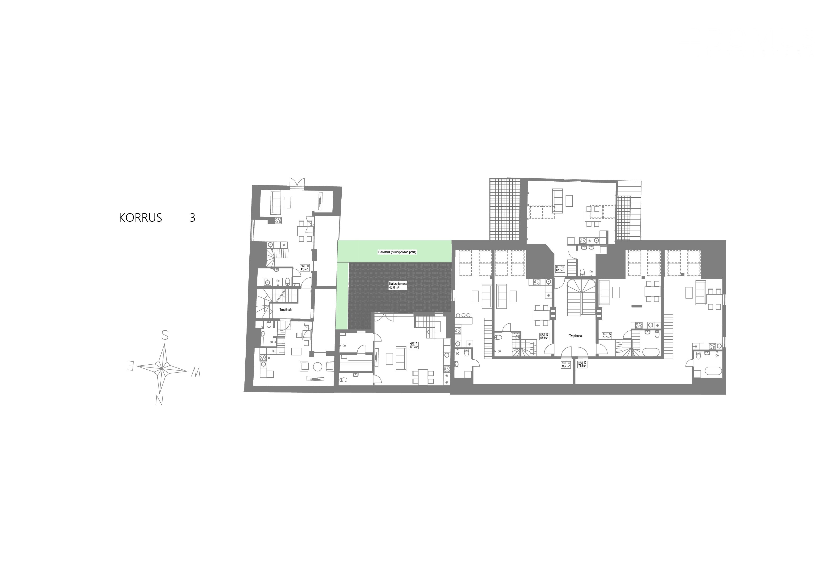
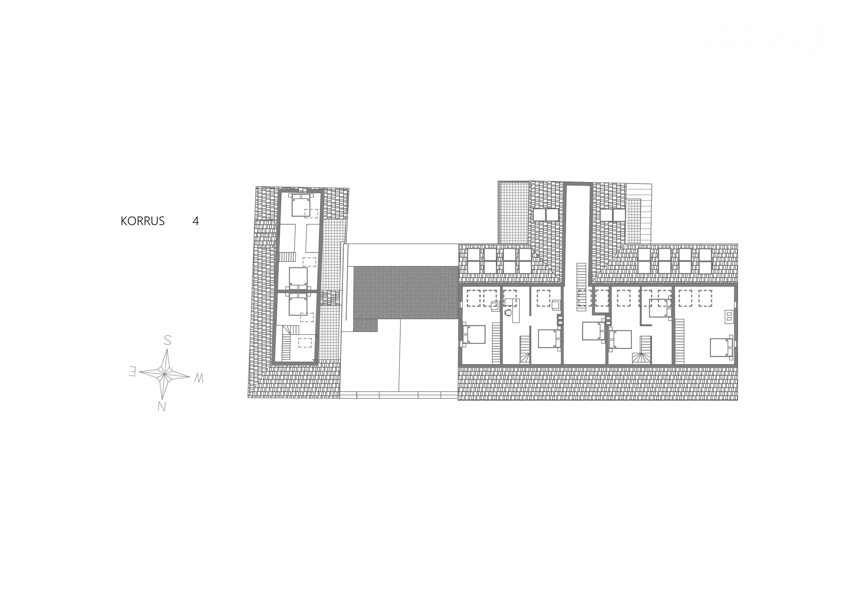
Mohri Houses comprise a total of 16 apartments, from 2‑room to 4‑room layouts.
Eight of the apartments extend over two floors, and several feature a terrace or balcony. The interior finishes use high‑quality premium‑class materials that suit this historic and distinguished building.

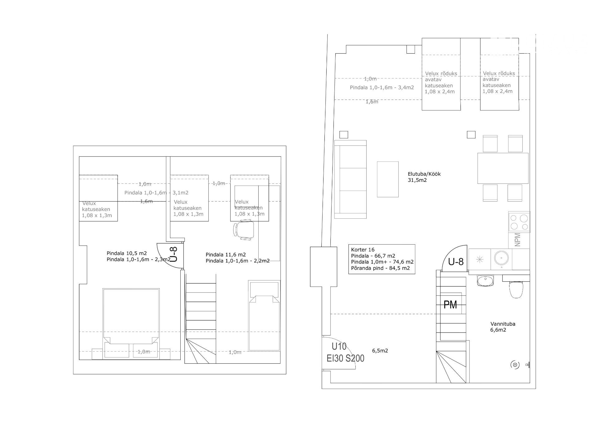
The apartment for sale is a 3‑room unit spanning two floors (III–IV).
The apartment’s measured area is 66.7 m² at a height of 1.6 m, 74.6 m² at a height of 1 m, and the total floor area is 84.5 m².
The apartment features water‑based underfloor heating connected to district heating, apartment‑specific ventilation with heat recovery, and digital temperature sensors in all rooms for heating and ventilation control.
The bathroom is equipped with a Villeroy & Boch O.Novo wall‑hung toilet, and a Danish Adora Infigo shower system and mixer.
The living areas have high‑quality oak parquet flooring, and the wet rooms are finished with 60 × 60 cm Italian ceramic tiles.
The roof windows open as French balconies, and an air conditioner has been installed for cooling.

The price of the apartment includes VAT!

Additional options for purchase:
storage room (various sizes starting from 2 m²) at €2200/m²

Come and enjoy the unique charm of Pärnu’s historic Old Town — relax and live right in the heart of the city.
Parks and greenery are just steps away, the beach is within walking distance, and the theatre is only a few steps from your door — not to mention all the other delights that Pärnu has to offer.

Visit the Mohri Houses website for more information:
https://www.mohrimajad.domus.ee/
Loe veel

285 000 €

4 272.9 € / m2
Condition:
New
Number of rooms:
3
Total area:
66.7 m2
Storey:
3 / 4
Bedrooms:
2
Bathrooms:
1
Heating:
Central heating
Heated floors
Air conditioner
Roof:
Stone roof
Building material:
Stone
Cadastral register number:
Form of ownership:
Apartment ownership
Fewer qualities
Additional information:
parquet, shower
Location:

Contact us

Similar objects

249 000 €
2 rooms
4 042.2 € / m2
61.6 m2
27.04.2026
265 000 €
2 rooms
4 483.9 € / m2
59.1 m2
17.04.2026