Müüa korter, 5 tuba - Veere tee 2, Kabala küla, Rapla vald, Rapla maakond
MÜÜA ERILINE JA AVAR 5-TOALINE KODU KABALA SÜDAMES – 126 m² KODUSOOJUST!
Kas otsite kodu, kus ruumipuudus on minevik ning kus on olemas kõik mugavused saunast mahukate panipaikadeni? See Kabala küla keskuses asuv korter on haruldane leid suuremale perele, kes hindab avarust, rahu ja läbimõeldud elukorraldust.
PLANEERING – TASAKAAL ÜHISE JA PRIVAATSE RUUMI VAHEL
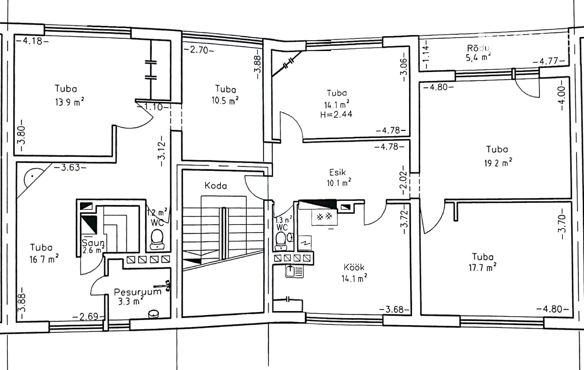
Korteri planeering on loogiliselt jaotatud kaheks osaks, pakkudes haruldast ruumikust – siin on kokku 4 magamistuba, suur elutuba ja avar sauna eesruum.
• Aktiivne tiib: Siin asub valgusküllane ja suur elutuba (19,2 m²) pääsuga päikeselisele rõdule (5,4 m²). Elutoa kõrval paikneb suur peamine magamistuba (17,7 m²), mis on varustatud mahuka sisseehitatud garderoobikapiga. Ruume ühendab esik (10,1 m²), kuhu on samuti paigaldatud suured ja mahukad garderoobikapid, mis mahutavad vaevata kogu pere riided ja tarbed.
Kas otsite kodu, kus ruumipuudus on minevik ning kus on olemas kõik mugavused saunast mahukate panipaikadeni? See Kabala küla keskuses asuv korter on haruldane leid suuremale perele, kes hindab avarust, rahu ja läbimõeldud elukorraldust.
PLANEERING – TASAKAAL ÜHISE JA PRIVAATSE RUUMI VAHEL
Korteri planeering on loogiliselt jaotatud kaheks osaks, pakkudes haruldast ruumikust – siin on kokku 4 magamistuba, suur elutuba ja avar sauna eesruum.
• Aktiivne tiib: Siin asub valgusküllane ja suur elutuba (19,2 m²) pääsuga päikeselisele rõdule (5,4 m²). Elutoa kõrval paikneb suur peamine magamistuba (17,7 m²), mis on varustatud mahuka sisseehitatud garderoobikapiga. Ruume ühendab esik (10,1 m²), kuhu on samuti paigaldatud suured ja mahukad garderoobikapid, mis mahutavad vaevata kogu pere riided ja tarbed.
Selles tiivas asub ka kodu süda – suur köök (14,1 m²).
• Rahulik tsoon ja saunakompleks: Teises pooles asuvad kolm täiendavat magamistuba ning avar kaminaga sauna eesruum (16,7 m²). See on ideaalne paik päeva lõpus päriselt aja maha võtmiseks ja saunajärgseks lõõgastumiseks.
• Mugavused: Korteris on isiklik pesuruum koos puuküttega saunaga ning kaks eraldi WC-d. Lisaks kuulub korteri juurde suur keldriboks.
Selline jaotus sobib eriti hästi perele, kus igaüks vajab oma privaatset ruumi, kuid samas on oluline ka mugav koos olemine.
KÜTE JA MAJA – TURVALISUS JA KONTROLL KULUDE ÜLE
Korteri suurim pluss on mitmekülgne küttelahendus, mis tagab nii mugavuse kui ka säästlikkuse:
• Keskküte: Majas on uus ja tõhus pelletikatel.
• Hubased alternatiivid: Korteris on alles traditsiooniline kamin ning puuküttepliit.
• Toimiv ühistu: Majal on vahetatud katus, uuendatud välisuksed ja kaasajastatud küttesüsteem. Kulude osas on loodud selge süsteem – igakuiselt tasutakse ühtlane küttefond, mis hoiab väljaminekud stabiilsena.
ASUKOHT – RAHULIK ELUKESKKOND JA TULEVIKU POTENTSIAAL
Kabala alevik on peresõbralik paik, kus igapäevaelu toimib mugavalt jalutuskäigu raadiuses:
• Lähedal: Kabala Lasteaed-Põhikool, mänguväljak, spordiplatsid ja välijõusaal.
• Loodus: Vaid kilomeetri kaugusel asub Vigala jõgi koos ujumiskoha ja puhkealaga.
• Ühendused: Rapla linn jääb 15-20-minutilise autosõidu kaugusele. Piirkonna väärtust tõstab rajatav Rail Baltica, mis parandab tulevikus veelgi ühendust Tallinna ja Euroopaga.
________________________________________
Tule ja veendu ise, et just siin on Sinu pere uus unistuste kodu!
Võta ühendust ja lepime kokku vaatamise:
Loe veel
• Rahulik tsoon ja saunakompleks: Teises pooles asuvad kolm täiendavat magamistuba ning avar kaminaga sauna eesruum (16,7 m²). See on ideaalne paik päeva lõpus päriselt aja maha võtmiseks ja saunajärgseks lõõgastumiseks.
• Mugavused: Korteris on isiklik pesuruum koos puuküttega saunaga ning kaks eraldi WC-d. Lisaks kuulub korteri juurde suur keldriboks.
Selline jaotus sobib eriti hästi perele, kus igaüks vajab oma privaatset ruumi, kuid samas on oluline ka mugav koos olemine.
KÜTE JA MAJA – TURVALISUS JA KONTROLL KULUDE ÜLE
Korteri suurim pluss on mitmekülgne küttelahendus, mis tagab nii mugavuse kui ka säästlikkuse:
• Keskküte: Majas on uus ja tõhus pelletikatel.
• Hubased alternatiivid: Korteris on alles traditsiooniline kamin ning puuküttepliit.
• Toimiv ühistu: Majal on vahetatud katus, uuendatud välisuksed ja kaasajastatud küttesüsteem. Kulude osas on loodud selge süsteem – igakuiselt tasutakse ühtlane küttefond, mis hoiab väljaminekud stabiilsena.
ASUKOHT – RAHULIK ELUKESKKOND JA TULEVIKU POTENTSIAAL
Kabala alevik on peresõbralik paik, kus igapäevaelu toimib mugavalt jalutuskäigu raadiuses:
• Lähedal: Kabala Lasteaed-Põhikool, mänguväljak, spordiplatsid ja välijõusaal.
• Loodus: Vaid kilomeetri kaugusel asub Vigala jõgi koos ujumiskoha ja puhkealaga.
• Ühendused: Rapla linn jääb 15-20-minutilise autosõidu kaugusele. Piirkonna väärtust tõstab rajatav Rail Baltica, mis parandab tulevikus veelgi ühendust Tallinna ja Euroopaga.
________________________________________
Tule ja veendu ise, et just siin on Sinu pere uus unistuste kodu!
Võta ühendust ja lepime kokku vaatamise:
66 000 €
523.8 € / m2
Seisukord:
Renoveeritud
Tubade arv:
5
Üldpind:
126 m2
Ehitusaeg:
1976
Magamistube:
4
Vannitube:
1
Pliit:
Keraamiline
Küte:
Kamin
Tsentraalne keskküte
Põrandaküte
Kombineeritud
Tsentraalne keskküte
Põrandaküte
Kombineeritud
Ehitise materjal:
Paneel
Katastritunnus:
Omandivorm:
Korteriomand
Lisaandmed:
saun, kaabel TV, internet, turvauks, pesumasin, mööbli võimalus, parkett, külmkapp, dušš
Asukoht: