Müüa korter, 4 tuba - Hõbeda tn 7, Kesklinna linnaosa, Tallinn, Harju maakond

https://domus.ee/234208878306191230/ Kopeeri link Jaga facebookis
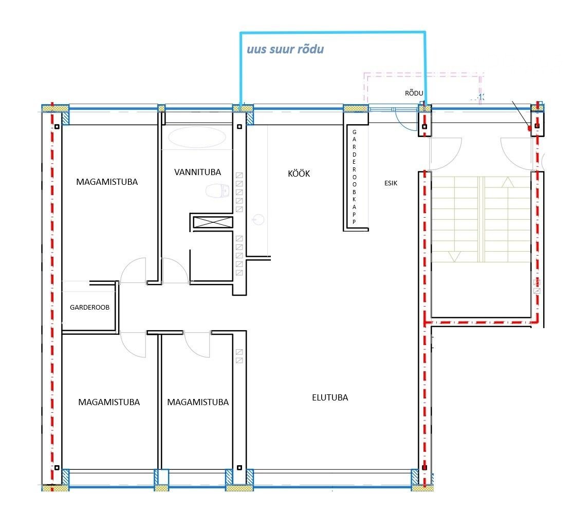
Suur ja valgusküllane perekorter Kadrioru veerel – rõdu, läbi maja planeering ja rohelised vaated

Fassaadi renoveerimistööd on alanud – maja saab värske ilme, parema energiatõhususe ning uued suuremad klaasitud rõdud.

KORTER
Kolmandal korrusel asuv läbi maja planeeringuga avar korter pakub rohkelt loomulikku valgust kogu päeva vältel. See on kodu, kus ruum ja valgus on päriselt tuntavad.
• Aknad kõikides ruumides, sh esikus ja vannitoas
• Vaikne ja privaatne – igal korrusel vaid 2 korterit
• Rõdu avaneb rohelisse sisehoovi
• Suur magamistuba koos eraldi walk-in garderoobiga
• Mahukas sisseehitatud garderoob esikus
Köögis on olemas kaasaegne köögimööbel ja tehnika, mis võimaldab kohe sisse kolida ilma lisainvesteeringuta.
Viimistluses on kasutatud naturaalseid ja ajas kestvaid materjale: naturaalne puitparkett tubades, kvaliteetsed keraamilised plaadid vannitoas, seinad kaetud lubikrohvi ja -värviga

Ideaalne kodu perele, kes hindab ruumikust, vaikust ja looduslähedust kesklinna lähedal.

Arhitekt Heili Volbergi kavandatud kortermaja
Hõbeda 7 asub rahulikus ja rohelises Raua asumis.
• 5-korruseline kivimaja
• Suur kinnistu koos Vase 10 hoonega
• Hoovis haljasala ja parkimisvõimalus
Korteriühistu on aktiivne ja praegu käsil maja täielik renoveerimine.
Tulemuseks on kaasaegsem, energiasäästlikum ja väärtust hoidev elukeskkond.

ASUKOHT
Kodukoht ühendab rahu ja linna mugavuse.
• Kadrioru park ja Luigetiik jalutuskäigu kaugusel
• koolid ja lasteaiad lähedal (sh Tallinna XXI Kool)
• kohvikud, muuseumid ja rohealad ümbruses
• kiire ühendus kesklinnaga

See ei ole lihtsalt korter – see on ruumikas ja tasakaalus kodu perele, kes soovib rohkem kui standardlahendus.

Loe veel

335 000 €

3 697.6 € / m2
Seisukord:
Uus viimistlus
Tubade arv:
4
Üldpind:
90.6 m2
Korrus:
3 / 5
Ehitusaeg:
1971
Magamistube:
3
Vannitube:
1
Panipaiku:
1
Krundi suurus:
3493 m2
Küte:
Tsentraalne keskküte
Ehitise materjal:
Kivi
Katastritunnus:
Omandivorm:
Korteriomand
Energiamärgis:
C
Vähem omadusi
Lisaandmed:
internet, parkett, külmkapp, dušš
Asukoht:

Võta ühendust

Sarnased objektid

559 000 €
4 tuba
5 652.2 € / m2
98.9 m2
05.03.2026
390 000 €
3 tuba
4 785.3 € / m2
81.5 m2
16.02.2023