Müüa korter, 2 tuba - A. Adamsoni tn 22, Kesklinna linnaosa, Tallinn, Harju maakond
Kaks ühetoalist korterit on kokkuehitamise valmiduses. Korter 1 suurusega 28,4m² ja krt 3 suurusega 24,50m².
Lisaks on uuel toimekal omanikul võimalus koos kahe naabriga majale täiskõrguses teine korrus ehitada. Antud korteri kohal on juba kõrgus kahe toa ja pesuruumi rajamiseks olemas aga omanike vahel veel seadustamata. Võimalus oleks ca 60m² lisapinnale.
Pildigaleriis on võimalikud projektilahendused.
Majja on sisse toodud uus elektrikaabel ja äsja on vahetatud kogu majja tulev vee- ja kanalisatsioonitorustik.
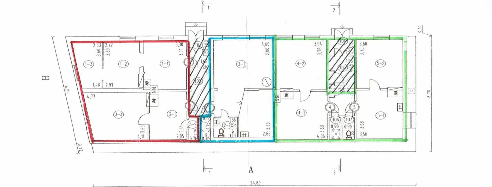
Plaanis on moodustada kinnistust kolme kasutustuskorraga eraldi hoovid, et tekiksid justkui kolm ridaelamut.
Antud hetkel müüakse kahte ühetoalist korteriomandit, mida ei ole veel ehitisregistris kokku liidetud, mõistlik on teha seda siis kui on olemas selgus teise korruse tubade suhtes, millele on sissepääs ainult sellest korterist.
Perspektiiv on päris muljetavaldav, vaja on tegeleda seadustamisega ja siis juba ehitamisega.
Hind on moodustatud olemasoleva kahe ühetoalise korteri põhjal, ilma eeldusteta võimalikule pinna suurendamisele.
Omanik on alustanud esimese korruse väljaehitamisega, põrandad koos küttetorustikuga on valatud, seinad on lammutatud.
On olemas ka arhitekti nägemus nii kahekordsest kui ka olemasolevast planeeringust.
Väga ilus koht elamiseks ja samas ka arendusprojektina kasumi teenimiseks.
Lisaks on uuel toimekal omanikul võimalus koos kahe naabriga majale täiskõrguses teine korrus ehitada. Antud korteri kohal on juba kõrgus kahe toa ja pesuruumi rajamiseks olemas aga omanike vahel veel seadustamata. Võimalus oleks ca 60m² lisapinnale.
Pildigaleriis on võimalikud projektilahendused.
Majja on sisse toodud uus elektrikaabel ja äsja on vahetatud kogu majja tulev vee- ja kanalisatsioonitorustik.
Plaanis on moodustada kinnistust kolme kasutustuskorraga eraldi hoovid, et tekiksid justkui kolm ridaelamut.
Antud hetkel müüakse kahte ühetoalist korteriomandit, mida ei ole veel ehitisregistris kokku liidetud, mõistlik on teha seda siis kui on olemas selgus teise korruse tubade suhtes, millele on sissepääs ainult sellest korterist.
Perspektiiv on päris muljetavaldav, vaja on tegeleda seadustamisega ja siis juba ehitamisega.
Hind on moodustatud olemasoleva kahe ühetoalise korteri põhjal, ilma eeldusteta võimalikule pinna suurendamisele.
Omanik on alustanud esimese korruse väljaehitamisega, põrandad koos küttetorustikuga on valatud, seinad on lammutatud.
On olemas ka arhitekti nägemus nii kahekordsest kui ka olemasolevast planeeringust.
Väga ilus koht elamiseks ja samas ka arendusprojektina kasumi teenimiseks.
Soovi korral saame pakkuda ka ehitajat.
Loe veel
165 000 €
3 119.1 € / m2
Seisukord:
Vajab renoveerimist
Tubade arv:
2
Üldpind:
52.9 m2
Korrus:
1 / 1
Ehitusaeg:
1885
Ehitise materjal:
Puit
Katastritunnus:
Omandivorm:
Korteriomand
Asukoht: