Müüa korter, 3 tuba - Raadiraja tn 14-2, Raadi-Kruusamäe, Tartu linn, Tartu linn, Tartu maakond
2025. aasta kevadel valmiv Raadiraja 14 kortermaja on kui neljas pusletükk Raadiraja Kvartali kaheksast kortermajast koosnevas projektis. See 4-korruseline liftiga maja pakub nutikalt planeeritud 2-, 3- ja 4-toalisi kortereid suuruses 46–84 m². Korterid sobivad hästi nii esimeseks koduks kui ka pere laienemise puhul, erinevalt Raadiraja 16 majast on siin saadaval avaramate planeeringutega korterid, sealhulgas ka 70+ m² 3-toalisi. Esimesel korrusel on privaatne hooviala ja terrass, teistel korrustel suured, ca 8m² rõdud.
Kõigis korterites on jahutuse valmidus.
Hinnad:
• 2-toalised: 152 900 - 159 900 €
• 3-toalised: 185 900 – 212 900 €
• 4-toalised: BRONEERITUD
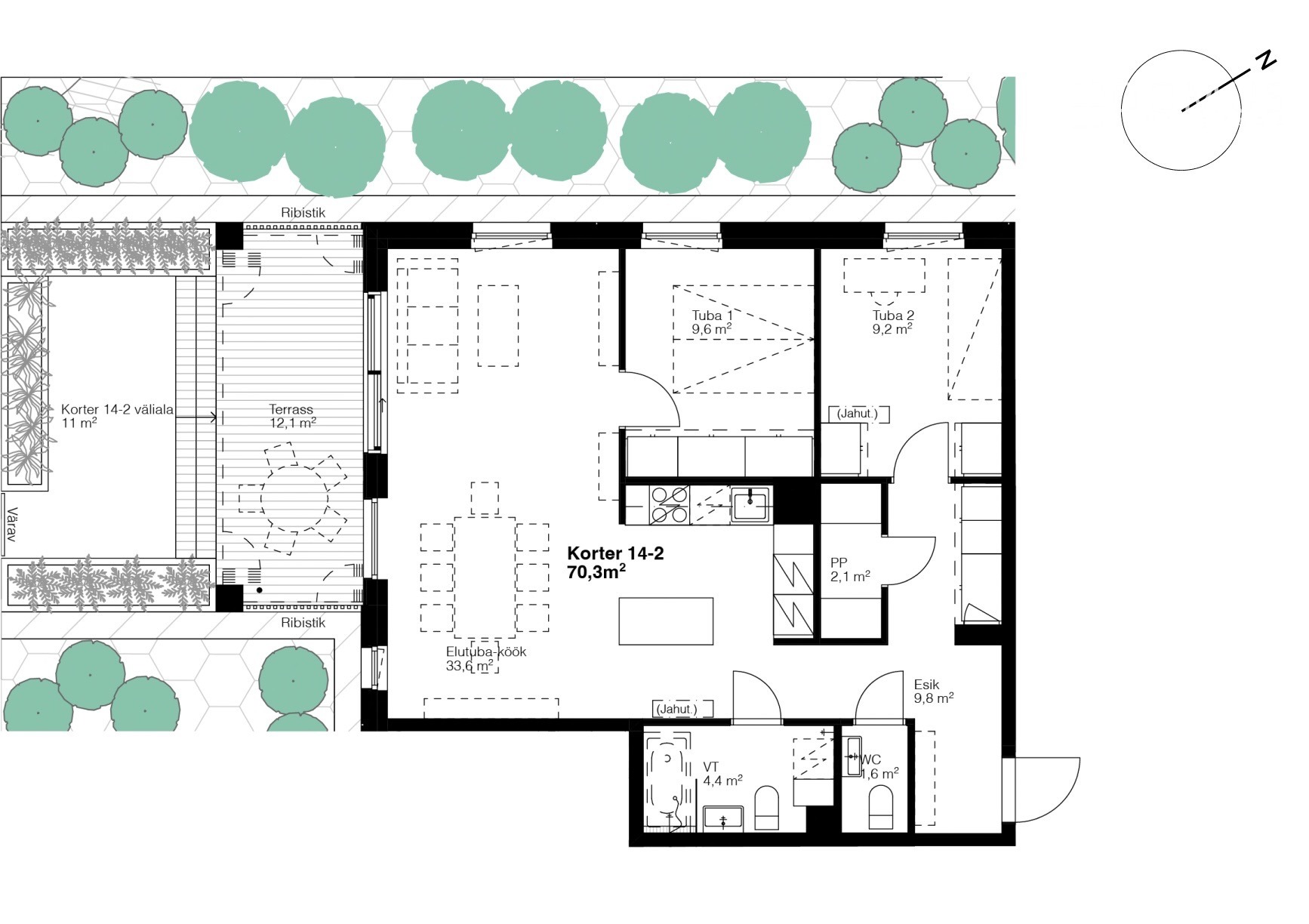
Raadiraja 14 maja 3-toaline korter nr 2 asub esimesel korrusel. Kodu koosneb esikust, avatud köögiga elutoast, kahest magamistoast ja WC/duširuumist. Siin on rohkem avarust tänu 2,9m laekõrgusele. Avar 12,1 m² terrass on justkui sinu isiklik lisatuba vabas õhus. Siia mahub vabalt rohelusest pakatav botaanikaaed, suvine võrkkiik või väike hommikukohvi nurgake, kus päeva rahulikult alustada. Soovi korral saab terrassi klaasida, et nautida loodust igal aastaajal. Terrass on sellel korteril maja otsa peal, kus privaatsust rohkem, sest teisi terrasse siin küljel pole. Selle korteri siseviimistlus tuleb stiilne ja tänapäevane Mets paketist.
Suure plussina on sellel korteril ka päris oma 11 m² suurune murulapp, kuhu keegi teine ei tule ja mille värava kaudu saad otse Raadiraja kvartalisse jalutama minna. Või miks mitte kasutada seda enda korteri sissepääsuna (võimalik lisada eritööna).
Et paremat ettekujutust saada, tule vaatama näidiskodu Raadiraja 10 majas, kus on olemas ka siseviimistlusmaterjalide näidised.
Lisade hindade kohta:
• Parkimiskoht: 2500 €
• Rattakoht kahetasandilises rattamajas: 700–900 € (olenevalt asukohast)
• Igal korteril on jahutuse valmidus, jahutussseadme saab juurde tellida lisatasu eest.
Köögid ei ole hinna sees, kuid kvaliteetsete köökide valmistaja Arens pakub soodsaid ja kaasaegseid lahendusi.
Tule ja koge seda ise – broneeri aeg ning tutvustan sulle nii Raadiraja kvartalit kui sinu uut võimalikku kodu. Siseviimistluspaketid ja lisainfo leiad: http://www.raadiraja.ee
Nb! Pildigalerii sisaldab illustreerivaid fotosid ning sarnase planeeringuga varem valminud korteri ja 2-toalise näidiskodu pilte.
Loe veel
Hinnad:
• 2-toalised: 152 900 - 159 900 €
• 3-toalised: 185 900 – 212 900 €
• 4-toalised: BRONEERITUD
Raadiraja 14 maja 3-toaline korter nr 2 asub esimesel korrusel. Kodu koosneb esikust, avatud köögiga elutoast, kahest magamistoast ja WC/duširuumist. Siin on rohkem avarust tänu 2,9m laekõrgusele. Avar 12,1 m² terrass on justkui sinu isiklik lisatuba vabas õhus. Siia mahub vabalt rohelusest pakatav botaanikaaed, suvine võrkkiik või väike hommikukohvi nurgake, kus päeva rahulikult alustada. Soovi korral saab terrassi klaasida, et nautida loodust igal aastaajal. Terrass on sellel korteril maja otsa peal, kus privaatsust rohkem, sest teisi terrasse siin küljel pole. Selle korteri siseviimistlus tuleb stiilne ja tänapäevane Mets paketist.
Suure plussina on sellel korteril ka päris oma 11 m² suurune murulapp, kuhu keegi teine ei tule ja mille värava kaudu saad otse Raadiraja kvartalisse jalutama minna. Või miks mitte kasutada seda enda korteri sissepääsuna (võimalik lisada eritööna).
Et paremat ettekujutust saada, tule vaatama näidiskodu Raadiraja 10 majas, kus on olemas ka siseviimistlusmaterjalide näidised.
Lisade hindade kohta:
• Parkimiskoht: 2500 €
• Rattakoht kahetasandilises rattamajas: 700–900 € (olenevalt asukohast)
• Igal korteril on jahutuse valmidus, jahutussseadme saab juurde tellida lisatasu eest.
Köögid ei ole hinna sees, kuid kvaliteetsete köökide valmistaja Arens pakub soodsaid ja kaasaegseid lahendusi.
Tule ja koge seda ise – broneeri aeg ning tutvustan sulle nii Raadiraja kvartalit kui sinu uut võimalikku kodu. Siseviimistluspaketid ja lisainfo leiad: http://www.raadiraja.ee
Nb! Pildigalerii sisaldab illustreerivaid fotosid ning sarnase planeeringuga varem valminud korteri ja 2-toalise näidiskodu pilte.
209 900 €
Broneeritud
2 985.8 € / m2
kuni 01.03.2027
Seisukord:
Uus
Tubade arv:
3
Üldpind:
70.3 m2
Korrus:
1 / 4
Ehitusaeg:
2026
Magamistube:
2
Vannitube:
1
Küte:
Tsentraalne keskküte
Ehitise materjal:
Paneel
Katastritunnus:
Omandivorm:
Korteriomand
Energiamärgis:
A
Lisaandmed:
kaabel TV, internet, mööbli võimalus, kliimaseade, parkett, dušš
Asukoht: