Müüa äripind, 3 tuba - Kaupmehe tn 2, Kesklinna linnaosa, Tallinn, Harju maakond
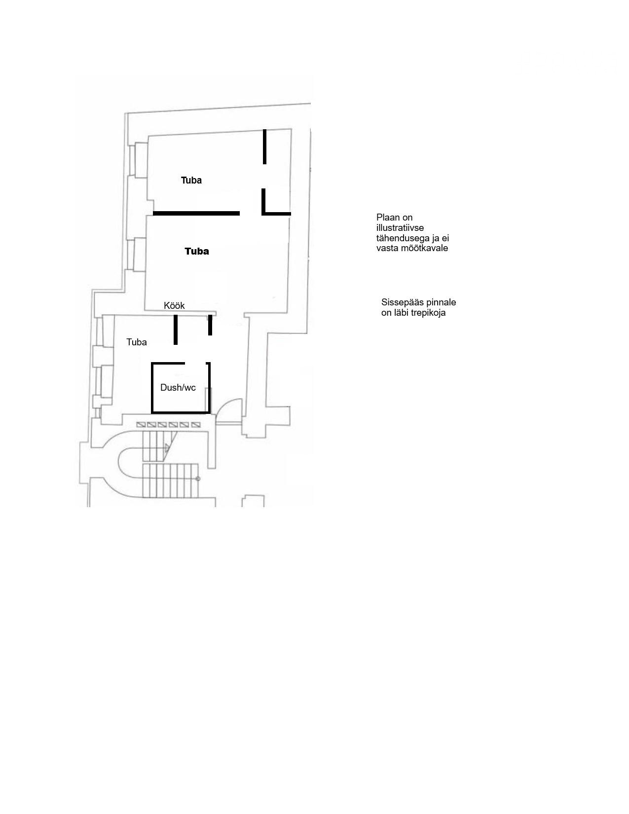
Kaupmehe tn 2 soklikorrusel asub äripind, mis on sisustatud nii, et sobiks välja rentimiseks elupinnana, salongiks või kontoriks. Sissepääs on läbi trepikoja, tänavalt otsesissepääsu kahjuks pole. Suhteliselt suured aknad avanevad hoovi poole.
Parkimine on maja taga hoovis ja tänaval, kindlaid parkimiskohti seal pole.
Piltidelt nähtuv köögimööbel on hinna sees, lisaväärtust annab tagumise toa garderoob/panipaik. Kogu korter on heas korras ja ei nõua koheseid parendustöösi.
Asukoht on Tallinna kõrgeimalt hinnatud kesklinna osas, maja on renoveeritud ja igati esinduslik.
Nüüd on see pind kajastatud ka EHRIs ja peaks sobima pankadele laenu tagatiseks.
Kui Teid see pakkumine kõnetas, võtke minuga ühendust ja räägime pikemalt või lepime juba kokku aja selle äripind/korteri ülevaatuseks.
Loe veel
Parkimine on maja taga hoovis ja tänaval, kindlaid parkimiskohti seal pole.
Piltidelt nähtuv köögimööbel on hinna sees, lisaväärtust annab tagumise toa garderoob/panipaik. Kogu korter on heas korras ja ei nõua koheseid parendustöösi.
Asukoht on Tallinna kõrgeimalt hinnatud kesklinna osas, maja on renoveeritud ja igati esinduslik.
Nüüd on see pind kajastatud ka EHRIs ja peaks sobima pankadele laenu tagatiseks.
Kui Teid see pakkumine kõnetas, võtke minuga ühendust ja räägime pikemalt või lepime juba kokku aja selle äripind/korteri ülevaatuseks.
109 000 €
2 607.7 € / m2
Tubade arv:
3
Üldpind:
41.8 m2
Korrus:
1 / 5
Ehitusaeg:
1934
Küte:
Tsentraalne keskküte
Ehitise materjal:
Kivi
Katastritunnus:
Omandivorm:
Korteriomand
Lisaandmed:
internet, külmkapp
Asukoht: