Müüa korter, 2 tuba - Kaupmehe tn 2, Kesklinna linnaosa, Tallinn, Harju maakond
Meil on kolmapäeval, 20.05.26 kell 12.00-13.00 eelregistreerimisega kliendipäev. Palun võtke minuga registreerimiseks ühendust hiljemalt teisipäeva, 19.05.26 lõunaks.
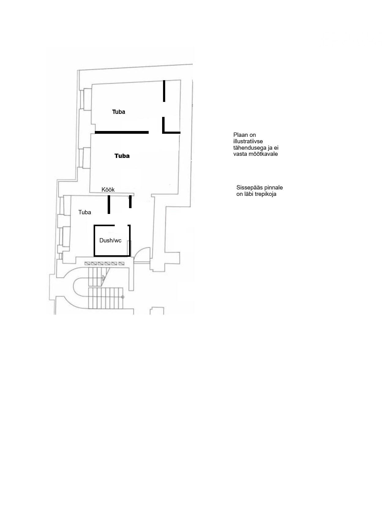
Kaupmehe tn 2 soklikorrusel asuv ametliku nimetusega äripind on sisustatud nii, et sobiks välja rentimiseks elupinnana, salongiks või kontoriks. Sissepääs on läbi trepikoja. Mõistliku suurusega aknad avanevad hoovi poole.
Parkimine on maja taga hoovis ja tänaval, kuid kindlaid parkimiskohti seal pole. Parkida saab hoovis KÜ loaga vaba koha olemasolul.
Piltidelt nähtuv köögimööbel on hinna sees, lisaväärtust annab tagumise toa garderoob/panipaik.
Tube on siin tegelikult isegi kolm, vaata piltide juures olevat plaani.
Asukoht on Tallinna kõrgeimalt hinnatud kesklinna osas, maja on renoveeritud ja igati esinduslik.
Kui Teid see pakkumine kõnetas, võtke minuga ühendust ja räägime pikemalt või lepime juba kokku aja selle äripind/korteri ülevaatuseks.
Loe veel
Kaupmehe tn 2 soklikorrusel asuv ametliku nimetusega äripind on sisustatud nii, et sobiks välja rentimiseks elupinnana, salongiks või kontoriks. Sissepääs on läbi trepikoja. Mõistliku suurusega aknad avanevad hoovi poole.
Parkimine on maja taga hoovis ja tänaval, kuid kindlaid parkimiskohti seal pole. Parkida saab hoovis KÜ loaga vaba koha olemasolul.
Piltidelt nähtuv köögimööbel on hinna sees, lisaväärtust annab tagumise toa garderoob/panipaik.
Tube on siin tegelikult isegi kolm, vaata piltide juures olevat plaani.
Asukoht on Tallinna kõrgeimalt hinnatud kesklinna osas, maja on renoveeritud ja igati esinduslik.
Kui Teid see pakkumine kõnetas, võtke minuga ühendust ja räägime pikemalt või lepime juba kokku aja selle äripind/korteri ülevaatuseks.
109 000 €
2 607.7 € / m2
Seisukord:
Renoveeritud
Tubade arv:
2
Üldpind:
41.8 m2
Korrus:
1 / 5
Ehitusaeg:
1934
Küte:
Tsentraalne keskküte
Ehitise materjal:
Kivi
Katastritunnus:
Omandivorm:
Korteriomand
Lisaandmed:
kaabel TV, internet, külmkapp, dušš
Asukoht: