Müüa korter, 3 tuba - Raadiraja tn 14-30, Raadi-Kruusamäe, Tartu linn, Tartu linn, Tartu maakond
Alles on valik viimaseid korterid, mis valmivad juba mai alguses, seega saad kodu välja valida ja üsna pea sisse kolida!
2026. aasta kevadel valmiv Raadiraja 14 kortermaja on kui neljas pusletükk Raadiraja Kvartali kaheksast kortermajast koosnevas projektis. See 4-korruseline liftiga maja pakub nutikalt planeeritud 2-, 3- ja 4-toalisi kortereid suuruses 46–84 m². Korterid sobivad hästi nii esimeseks koduks kui ka pere laienemise puhul, erinevalt Raadiraja 16 majast on siin saadaval avaramate planeeringutega korterid, sealhulgas ka 70+ m² 3-toalisi. Esimesel korrusel on privaatne hooviala ja terrass, teistel korrustel suured, ca 8m² rõdud.
2026. aasta kevadel valmiv Raadiraja 14 kortermaja on kui neljas pusletükk Raadiraja Kvartali kaheksast kortermajast koosnevas projektis. See 4-korruseline liftiga maja pakub nutikalt planeeritud 2-, 3- ja 4-toalisi kortereid suuruses 46–84 m². Korterid sobivad hästi nii esimeseks koduks kui ka pere laienemise puhul, erinevalt Raadiraja 16 majast on siin saadaval avaramate planeeringutega korterid, sealhulgas ka 70+ m² 3-toalisi. Esimesel korrusel on privaatne hooviala ja terrass, teistel korrustel suured, ca 8m² rõdud.
Kõigis korterites on jahutuse valmidus.
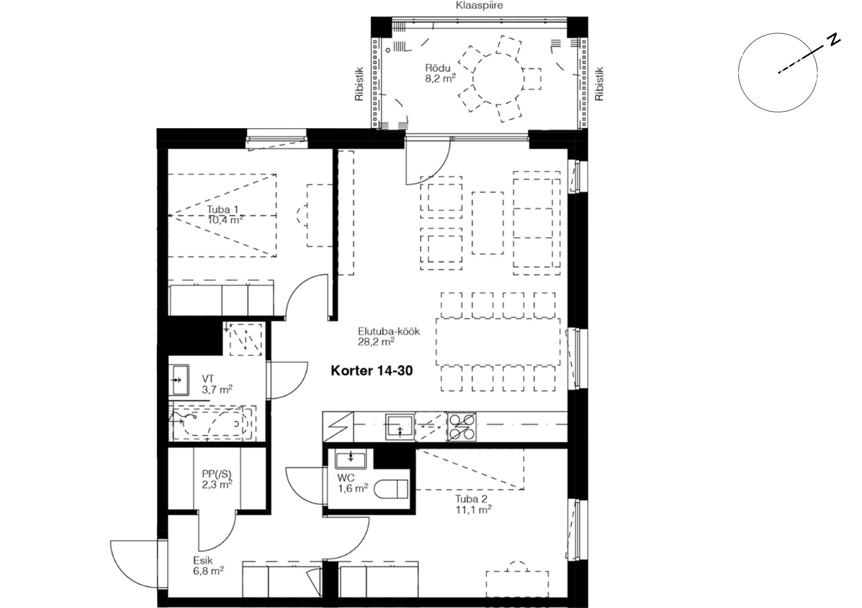
Raadiraja 14 maja 3-toaline korter nr 30 asub neljandal korrusel. Kodu koosneb esikust, avatud köögiga elutoast, kahest magamistoast ja WC/duširuumist. Avar 8,2 m² rõdu on justkui sinu isiklik lisatuba vabas õhus. Siia mahub vabalt rohelusest pakatav botaanikaaed, suvine võrkkiik või väike hommikukohvi nurgake, kus päeva rahulikult alustada. Soovi korral saab rõdu klaasida, et nautida loodust igal aastaajal. Rõdu on sellel korteril õhtupäikese ning rohelise sisehoovi poole, tänavalt eemal. Selle korteri siseviimistlus tuleb looduslik ja hubane Liivakivi paketist.
Et paremat ettekujutust saada, tule vaatama näidiskodu Raadiraja 14 majas, kus on olemas ka siseviimistlusmaterjalide näidised.
Lisade hindade kohta:
• Parkimiskoht: 2500 €
• Rattakoht kahetasandilises rattamajas: 700–900 € (olenevalt asukohast)
• Igal korteril on jahutuse valmidus, jahutussseadme saab juurde tellida lisatasu eest.
Köögid ei ole hinna sees, kuid kvaliteetsete köökide valmistaja Arens pakub soodsaid ja kaasaegseid lahendusi.
Tule ja koge seda ise – broneeri aeg ning tutvustan sulle nii Raadiraja kvartalit kui sinu uut võimalikku kodu. Siseviimistluspaketid ja lisainfo leiad: http://www.raadiraja.ee
Nb! Pildigalerii sisaldab illustreerivaid fotosid varem valminud sama planeeringu ja siseviimistluspaketiga korterist ning 2-toalise näidiskodu pilte.
Loe veel
Raadiraja 14 maja 3-toaline korter nr 30 asub neljandal korrusel. Kodu koosneb esikust, avatud köögiga elutoast, kahest magamistoast ja WC/duširuumist. Avar 8,2 m² rõdu on justkui sinu isiklik lisatuba vabas õhus. Siia mahub vabalt rohelusest pakatav botaanikaaed, suvine võrkkiik või väike hommikukohvi nurgake, kus päeva rahulikult alustada. Soovi korral saab rõdu klaasida, et nautida loodust igal aastaajal. Rõdu on sellel korteril õhtupäikese ning rohelise sisehoovi poole, tänavalt eemal. Selle korteri siseviimistlus tuleb looduslik ja hubane Liivakivi paketist.
Et paremat ettekujutust saada, tule vaatama näidiskodu Raadiraja 14 majas, kus on olemas ka siseviimistlusmaterjalide näidised.
Lisade hindade kohta:
• Parkimiskoht: 2500 €
• Rattakoht kahetasandilises rattamajas: 700–900 € (olenevalt asukohast)
• Igal korteril on jahutuse valmidus, jahutussseadme saab juurde tellida lisatasu eest.
Köögid ei ole hinna sees, kuid kvaliteetsete köökide valmistaja Arens pakub soodsaid ja kaasaegseid lahendusi.
Tule ja koge seda ise – broneeri aeg ning tutvustan sulle nii Raadiraja kvartalit kui sinu uut võimalikku kodu. Siseviimistluspaketid ja lisainfo leiad: http://www.raadiraja.ee
Nb! Pildigalerii sisaldab illustreerivaid fotosid varem valminud sama planeeringu ja siseviimistluspaketiga korterist ning 2-toalise näidiskodu pilte.
199 550 €
3 113.1 € / m2
Seisukord:
Uus
Tubade arv:
3
Üldpind:
64.1 m2
Korrus:
4 / 4
Ehitusaeg:
2026
Magamistube:
2
Vannitube:
1
Panipaiku:
1
Küte:
Tsentraalne keskküte
Ehitise materjal:
Paneel
Katastritunnus:
Omandivorm:
Korteriomand
Energiamärgis:
A
Lisaandmed:
kaabel TV, internet, mööbli võimalus, parkett, dušš
Asukoht: