Müüa korter, 3 tuba - Raadiraja tn 8-13, Raadi-Kruusamäe, Tartu linn, Tartu linn, Tartu maakond
PROJEKTI TUTVUSTUS
Raadiraja Kodudes on kokku planeeritud 8 kortermaja. Juba on valmis kolm kortermaja ning mai 2026 valmib neljas maja. On aeg alustada viienda maja, st Raadiraja 8 müüki!
Loomulikult on viiendal majal - aadressil Raadiraja 8 - olemas kõik Raadiraja kvartali majade mugavused, aga natuke on üllatusi ka! Näiteks on nelja maja ühiskasutusse tulemas kasvuhoone.
Hooviala tuleb ikka chill, siia on planeeritud tenniselaud, võrkkiik, piknikumööbel, grill.
Kaskede vahele on kavandatud ninja-slackline. I korruse rõduuksed on lükanduksed ja privaatsetel välialadel on väravad. Hoovialad piiritletakse betoonkastidega, mille sisse istutab arendaja ka taimestiku.
Lisamugavuse annab esimesel korrusel olev vankrite ja abivahendite hoiuruum, kus asub ka pesupunkt, et saaksid hobivarustust, aga näiteks ka oma neljajalgset sõpra pesta. Majas on muidugi ka lift.
Kuigi juriidiliselt asuvad Raadiraja Kodud Tartu vallas, Raadi alevis, on linna piir loetud sammude kaugusel.
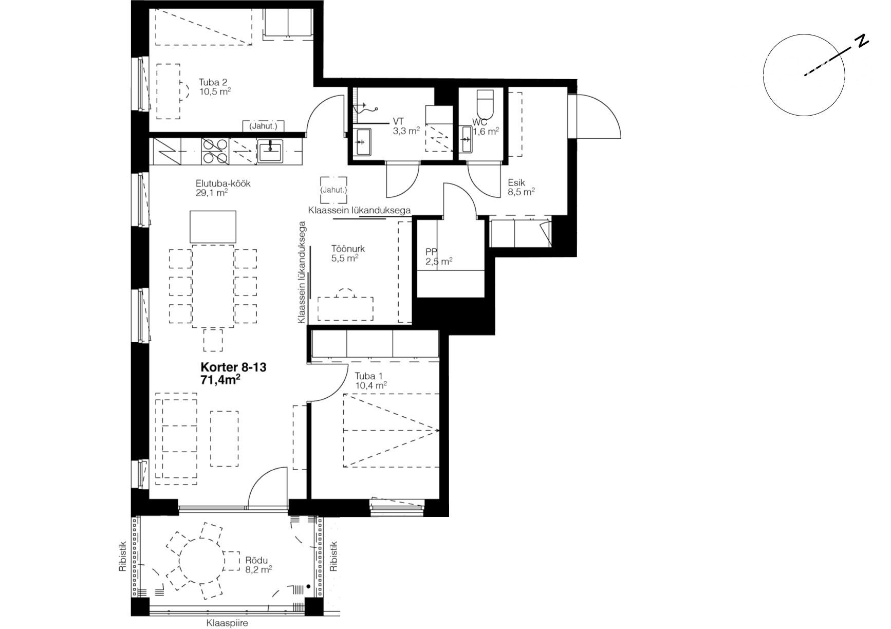
RAADIRAJA 8 KORTER 13 - VAADE AUTOVABALE SISEHOOVILE, LÜKANDUSTEGA KLAASSEINAST TÖÖNURK JA ERALDI WC
Korteri projekteerimisel on arvestatud IKEA moodulite suurustega ning panipaik on juba korteris sees. Muidugi ei puudu korteril väike ja põnev "kiiks", mis teda teistest korteritest eristaks - just sellesse korterisse on tulemas lükandustega klaasseinad töönurga loomiseks. Ka see, et wc ja dushiruum on eraldi, on päris mugav!
Rõdu klaasimine on Raadiraja Kodudes ülimalt popp kuna annab võimaluse pikendada suve. Me saame selle võimaluse Sulle täitsa ok hinnaga korteri müügihinnale juurde lisada - kasuta seda võimalust kindlasti ära!
Siseviimistluse saad oma maitse järgi kujundada - valikus on lausa 3 erineva karakteriga paketti, mille vahel valida.
Raadiraja 8 ehitus algab kevadel 2026 ja prognoositav valmimise tähtaeg 01.11.2026.
Päris vinge eks ole!
Lisavõimalused:
*Korteri juurde on võimalik soetada parkimiskoht hinnaga 2500 eurot ning rattakoht hinnaga 700-900 eurot
* Igal Raadiraja 8 korteril on jahutuse valmidus, jahutusseadme saab juurde tellida lisatasu eest
* Raadiraja Kodud teevad koostööd Arensiga - kui soovid, annan lisainfot!
SUURIM BOONUS:
Raadiraja kodud kasvavad koos loodusega – sulandudes ümbritsevasse keskkonda ja hoides alles kõik, mis juba ilus. Siin saab argipäevast osa konnalaul, lindude salapärased jutud kõrgetes latvades ning uudishimulikud kitsekesed, kes ilmuvad just siis, kui maailm on vaikne. See pole lihtsalt kodu – see on elu looduse rütmis."
Vahvatest vaadetest, elukeskkonnast ning muudest hüvedest saad ülevaate kodulehelt: http://www.raadiraja.ee.
OLED STARDIVALMIS NING SOOVID VALIDA UUT KODU?
Helista mulle ning lepime kokku kohtumise Raadirajal!
Loe veel
Lisamugavuse annab esimesel korrusel olev vankrite ja abivahendite hoiuruum, kus asub ka pesupunkt, et saaksid hobivarustust, aga näiteks ka oma neljajalgset sõpra pesta. Majas on muidugi ka lift.
Kuigi juriidiliselt asuvad Raadiraja Kodud Tartu vallas, Raadi alevis, on linna piir loetud sammude kaugusel.
RAADIRAJA 8 KORTER 13 - VAADE AUTOVABALE SISEHOOVILE, LÜKANDUSTEGA KLAASSEINAST TÖÖNURK JA ERALDI WC
Korteri projekteerimisel on arvestatud IKEA moodulite suurustega ning panipaik on juba korteris sees. Muidugi ei puudu korteril väike ja põnev "kiiks", mis teda teistest korteritest eristaks - just sellesse korterisse on tulemas lükandustega klaasseinad töönurga loomiseks. Ka see, et wc ja dushiruum on eraldi, on päris mugav!
Rõdu klaasimine on Raadiraja Kodudes ülimalt popp kuna annab võimaluse pikendada suve. Me saame selle võimaluse Sulle täitsa ok hinnaga korteri müügihinnale juurde lisada - kasuta seda võimalust kindlasti ära!
Siseviimistluse saad oma maitse järgi kujundada - valikus on lausa 3 erineva karakteriga paketti, mille vahel valida.
Raadiraja 8 ehitus algab kevadel 2026 ja prognoositav valmimise tähtaeg 01.11.2026.
Päris vinge eks ole!
Lisavõimalused:
*Korteri juurde on võimalik soetada parkimiskoht hinnaga 2500 eurot ning rattakoht hinnaga 700-900 eurot
* Igal Raadiraja 8 korteril on jahutuse valmidus, jahutusseadme saab juurde tellida lisatasu eest
* Raadiraja Kodud teevad koostööd Arensiga - kui soovid, annan lisainfot!
SUURIM BOONUS:
Raadiraja kodud kasvavad koos loodusega – sulandudes ümbritsevasse keskkonda ja hoides alles kõik, mis juba ilus. Siin saab argipäevast osa konnalaul, lindude salapärased jutud kõrgetes latvades ning uudishimulikud kitsekesed, kes ilmuvad just siis, kui maailm on vaikne. See pole lihtsalt kodu – see on elu looduse rütmis."
Vahvatest vaadetest, elukeskkonnast ning muudest hüvedest saad ülevaate kodulehelt: http://www.raadiraja.ee.
OLED STARDIVALMIS NING SOOVID VALIDA UUT KODU?
Helista mulle ning lepime kokku kohtumise Raadirajal!
215 900 €
3 023.8 € / m2
Seisukord:
Uus
Tubade arv:
3
Üldpind:
71.4 m2
Korrus:
2 / 4
Ehitusaeg:
2026
Küte:
Tsentraalne keskküte
Põrandaküte
Põrandaküte
Lisaandmed:
parkett, dušš
Asukoht: